2022 TIFFIN MOTORHOMES OTHER

Hammond, LADealerShowroom
2
Rv TypeClass A
Length34 ft
Fuel TypeGAS
Mileage-

Description

Short description that should be within 200 to 250 characters to validate the description limit change check. For more details and relevant information contact abc.com
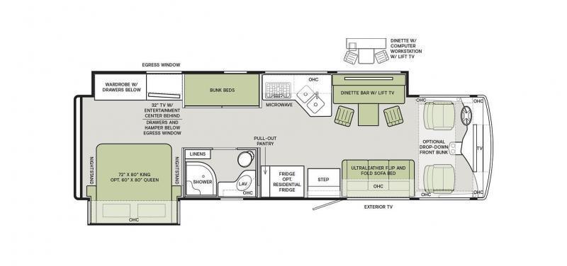
RV details
Type
Class A
Condition
New
Length
34 ft
Odometer
0 mi
Slide-outs
2
Sleeping capacity
8
Floor plan
OTHER
Fuel type
GAS
Dealer stock ID
47597
Dealer information
Dixie RV SuperStores LLC
Family owned & operated specializing in RV Sales & Service for over 35 years! Choose from TOP MANUFACTURER BRANDS and take advantage of the DIXIE DISCOUNTS! Call 866-607-1444 today to speak with one of our friendly and knowledgeable RV Outfitters! Dixie RV SuperStores in Hammond, LA is your hometown dealer conveniently located off I-12, Exit 35.
Enquire for price

Contact the seller

By using this site, you agree to our Terms & our Privacy Policy
Call the dealer
(877) 329-8302