2022 RIVERSIDE RV OTHER

Jacksonville, FLDealerShowroom
20
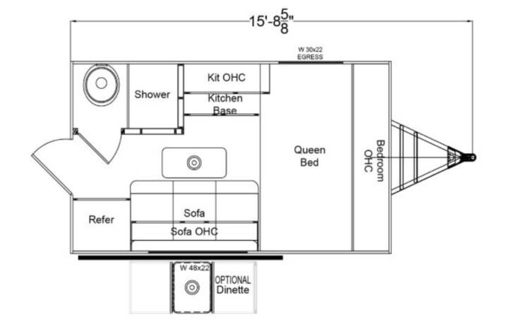
Rv TypeTravel Trailer
Length15 ft
Fuel Type-
Mileage100 mi

Description

Short description that should be withing 200 to 250 characters to validate the description limit change check. For more details and relevant information contact abc.com
RV details
Type
Travel Trailer
Condition
New
Length
15 ft
GVWR
3,640 lbs
Odometer
100 mi
Sleeping capacity
4
Exterior color
white
Interior color
wood
Floor plan
OTHER
Dealer stock ID
RVIN05529
Dealer information
Travelcamp RV of Jacksonville
Travelcamp RV is Family owned and operated since 1982. Specializing in Towables aRVs ensures we can offer a wide selection of top national brands. Exclusive Winnebago Dealer (Micro Minnie, Minnie, Minnie Plus, & Winnie Drop) Other lines include Cherokee, Puma, Wildcat, Whitewater Retro, Sylvan Sport Go, Big Horn Fifth Wheel and Cherokee Arctic Fox. Competitive financing with all major lenders. NOBODY BEATS OUR PRICES!! 100 % SATISFACTION GUARANTEED.
$22,477

Contact the seller

By using this site, you agree to our Terms & our Privacy Policy
Call the dealer
(904) 469-0692